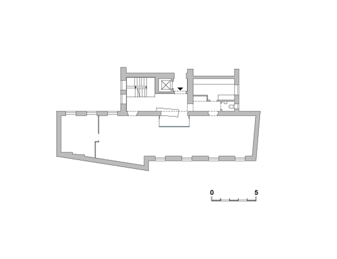
Office Treuhandunion I
Vienna 1st District
1994 - 1995
TEXTPHOTOSPLANS